place
Наши филиалы: Лида

1 комнатная квартира

Продажа Гродно, Врублевского, 94

Продаётся уютная, теплая 1-комнатная квартира со свежим ремонтом, с мебелью и бытовой техникой.

Врублевского, д. 94

Идеальный 4-й этаж 9-ти этажного дома

Панельный дом чешской планировки 1975 года

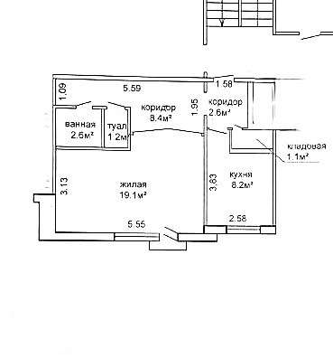
43,2/19,1/8,2 м2

Идеальный 4 этаж исключает необходимость высоко подниматься по ступенькам по пути домой.

Интерьер в квартире создавался хозяевами для себя с использованием лучших материалов и элементов. Свежий тщательный ремонт во всей квартире. Правильно подобранное цветовое решение создает единое пространство и создает ощущение уюта.

Материал полов качественный износоустойчивый ламинат, керамическая плитка. Натяжные потолки.

Все окна новые стеклопакеты, выходят на парковую зону.

Новые межкомнатные двери из массива дерева. Стальная входная дверь.

Новые ванна и унитаз.

Гардеробная с полками и освещением в прихожей.

Шкаф командор новый в коридоре.

Прекрасное местоположение дома, в тихом спокойном районе. Уютный аккуратный свежий подьезд. Развитая потребительская, социальная и транспортная инфраструктура в окрестностях дома: в шаговой доступности лесопарк «Пышки», тропа здоровья, река Неман, магазины, торговый центр, гимназии, школы, детские сады, ГрГМУ, поликлиника №4, Областная и районная больница, ФОК с аквапарком и спортивным комплексом, транспортная развязка существенно сэкономят время пребывания в пути. Рядом с домом удобная парковка , детская площадка.

Санузел раздельный.

За квартирой закреплено кладовое помещение на лестничной клетке.

Возможно приобретение с кредитом и через кооператив «Жилищный баланс»

Звоните! А лучше- приезжайте!

Оперативный показ и юридическое сопровождение сделки гарантируем.

134 244.00 BYN 45 000.00$ 3 107.51 BYN/м2 1 041.67$/м2
Предложить свою цену
Заполните телефон!
Введите цену или отметьте галочкой "Консультация по кредиту"
Нажимая "Отправить" я даю согласие на обработку персональных данных
Область
Гродненская область
Район области
Гродненский
Район
Ленинский
Микрорайон
Форты-1
Кол-во комнат квартиры
1
Кол-во раздельных комнат
1
Площадь(О/Ж/К)
43.20/19.10/8.20
Этаж
4/9
Год постройки
1975
Материалы дома
Панель
Балконы
Нет
Сан. узел (кол-во)
Раздельный: 1
Номер и дата договора
398/17 от 28-08-2025
Посмотреть на карте