place
Наши филиалы: Лида

1 комнатная квартира

Продажа Гродно, Виктора Саяпина, 10

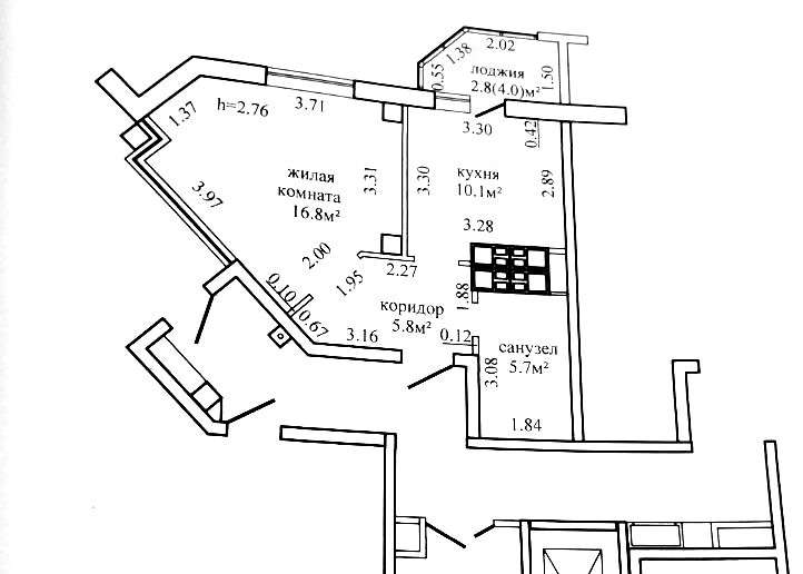
Продается 1-х комнатная квартира ул. Виктора Саяпина дом 10 на 11 этаже/16 этажного монолитного жилого дома. Год постройки 2021. Площадь общая 41.2, жилая 16.8 ,кухня 10.1 м2. Одна лоджия 4.0 м2. Ремонт выполнен в светлых тонах. Входная металлическая дверь, стены выровнены, окрашены, на полу ламинат. Санузел 5,7 м2 . Сделана новая электрика, сантехника. Хороший вид из окон на рассвет . Чистый аккуратный подъезд. В доме просторная лестничная клетка. Два лифта. В шаговой доступности (школа, детский сад № 111, магазины, аптеки, детская Амбулатория).Вблизи дома остановки общественного транспорта.

Поможем продать вашу недвижимость для покупки этой!

За подробной информацией просьба обращаться по телефону и пишите Viber, Telegram. Возможен торг.

154 219.37 BYN 52 900.00$ 3 743.19 BYN/м2 1 283.98$/м2
Предложить свою цену
Заполните телефон!
Введите цену или отметьте галочкой "Консультация по кредиту"
Нажимая "Отправить" я даю согласие на обработку персональных данных
Область
Гродненская область
Район области
Гродненский
Район
Ленинский
Микрорайон
Грандичи-2
Кол-во комнат квартиры
1
Кол-во раздельных комнат
1
Площадь(О/Ж/К)
41.20/16.80/10.10
Этаж
11/16
Год постройки
2021
Материалы дома
Монолит
Балконы
Лоджия: 1
Сан. узел (кол-во)
Совмещенный: 1
Номер и дата договора
491/17 от 05-10-2025
Посмотреть на карте