place
Наши филиалы: Лида

1 комнатная квартира

Продажа Гродно, Великая Ольшанка, 15

Продается однокомнатная квартира в г. Гродно, ул. В. Ольшанка, 15. Уютный двор, аккуратный, чистый подъезд с домофоном и видеонаблюдением. Квартира с отделкой, мебелью и бытовой техникой.

Развитая инфраструктура дома (магазины, ТЦ « Парус», школа, бассейн, детский сад, амбулатория ), хорошая транспортная развязка, рядом лес, велодорожки, большая парковка, детская площадка.

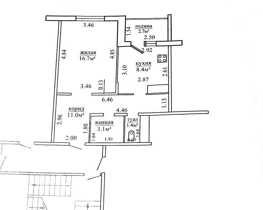
1 этаж 9-ти этажного панельного дома 2011 года постройки. Общая площадь 40.6 кв.м., жилая – 16.7 кв.м., кухня 8.4. Окна – ПВХ. Сан. узел раздельный.

За дополнительной информацией просьба обращаться по номеру телефона.

Кроме того, здесь Вы можете организовать собственный бизнес как сдача квартиры в аренду.

Бесплатное сопровождение для покупателя!!! Оперативный показ и юридическое сопровождение сделки гарантируем. Поможем продать вашу недвижимость для покупки этой. Работаем с привлечением кредита, жилищного баланса, семейного капитала.

За подробной информацией просьба обращаться по телефону и пишите Viber, Telegram. Возможен торг.

144 307.35 BYN 49 500.00$ 3 554.36 BYN/м2 1 219.21$/м2
Предложить свою цену
Заполните телефон!
Введите цену или отметьте галочкой "Консультация по кредиту"
Нажимая "Отправить" я даю согласие на обработку персональных данных
Область
Гродненская область
Район области
Гродненский
Район
Октябрьский
Микрорайон
Южный-2
Кол-во комнат квартиры
1
Кол-во раздельных комнат
1
Площадь(О/Ж/К)
40.60/16.70/8.40
Этаж
1/9
Год постройки
2011
Материалы дома
Панель
Балконы
Лоджия: 1
Сан. узел (кол-во)
Раздельный: 1
Номер и дата договора
599/17 от 26-11-2025
Посмотреть на карте