place
Наши филиалы: Лида

1 комнатная квартира

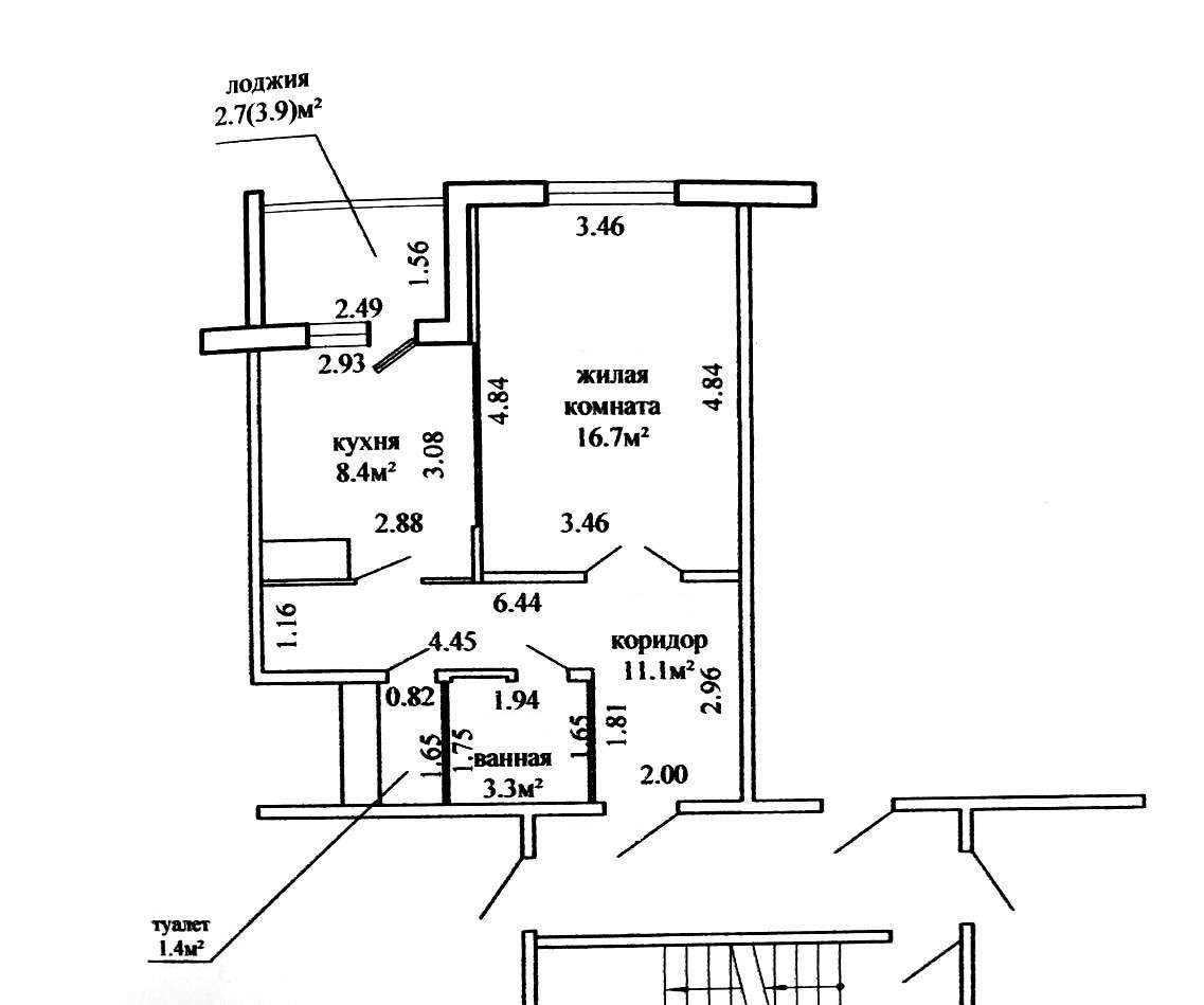
Продажа Гродно, Валентины Макаровой, 5

Продается 1-х комнатная квартира ул.Валентины Макаровой дом 5 , 5 этаж/10 этажного панельного жилого дома. Год постройки 2022. Площадь общая 43.6, жилая 16.7 ,кухня 8.4 м2. Одна панорамная лоджия 3.9 м2. Ремонт выполнен в светлых тонах. Входная деревянная дверь, стены выровнены, обои оклеены, на полу ламинат. Санузел раздельный .Сделана новая электрика, сантехника. Хороший вид из окон на рассвет . Чистый аккуратный подъезд. В доме просторная лестничная клетка. Один лифт с выходом на две стороны. Есть место для подвальной ячейки. В шаговой доступности (школа, детский сад № 111, магазины, аптеки, детская Амбулатория).Вблизи дома остановки общественного транспорта.

Поможем продать вашу недвижимость для покупки этой!

За подробной информацией просьба обращаться по телефону и пишите Viber, Telegram. Возможен торг.

142 558.17 BYN 48 900.00$ 3 269.68 BYN/м2 1 121.56$/м2
Предложить свою цену
Заполните телефон!
Введите цену или отметьте галочкой "Консультация по кредиту"
Нажимая "Отправить" я даю согласие на обработку персональных данных
Область
Гродненская область
Район области
Гродненский
Район
Ленинский
Микрорайон
Грандичи-1
Кол-во комнат квартиры
1
Кол-во раздельных комнат
1
Площадь(О/Ж/К)
43.60/16.70/8.40
Этаж
5/10
Год постройки
2022
Материалы дома
Панель
Балконы
Лоджия: 1
Сан. узел (кол-во)
Раздельный: 1
Номер и дата договора
533/17 от 20-10-2025
Посмотреть на карте