place
Наши филиалы: Лида

1 комнатная квартира

Продажа Гродно, Портовая

Предлагается к продаже 1-комнатная квартира в центре г. Гродно, возле р. Неман, с видом на Старый Замок, площадью 26,8 м², расположенная в жилом 4х квартирном доме 1952 года постройки. Дом одноэтажный, выполнен из бруса, с деревянными перекрытиями и крышей из шифера.

 

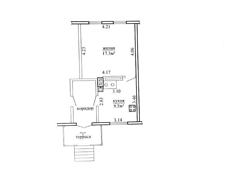
Планировка квартиры включает одну жилую комнату площадью 17,3 м² и кухню 9,5 м². Высота потолков составляет 2,98 м.

 

Окна — ПВХ. Полы — ламинат. Отопление печное. Водопровод-центральный, канализация местная (септик), газ-баллон, (центральный идет по улице).

Дом расположен в жилом районе, в общем пользовании есть коридор площадью 6,3 м² и терраса 1,4 м².

К квартире прилагается земельный участок с теплицей, сараем и с/у. Территория огорожена, подъезд асфальтирован. Очень тихое и атмосферное место в самом сердце города.

Окажем помощь в продаже Вашей недвижимости для покупки этой! Юридическое сопровождение сделки гарантируем. Работаем с привлечением кредита, семейного капитала, жилищного баланса. Звоните будем рады выслушать Ваши предложения!

55 390.70 BYN 19 000.00$ 2 066.83 BYN/м2 708.96$/м2
Предложить свою цену
Заполните телефон!
Введите цену или отметьте галочкой "Консультация по кредиту"
Нажимая "Отправить" я даю согласие на обработку персональных данных
Область
Гродненская область
Район области
Гродненский
Район
Октябрьский
Кол-во комнат квартиры
1
Кол-во раздельных комнат
1
Площадь(О/Ж/К)
26.80/17.30/9.50
Этаж
1/1
Год постройки
1952
Материалы дома
Дерево
Балконы
Нет
Сан. узел (кол-во)
Нет
Номер и дата договора
98/17 от 19-05-2025
Посмотреть на карте