place
Наши филиалы: Лида

1 комнатная квартира

Продажа Гродно, Огинского, 11

Продается однокомнатная квартира в г. Гродно, ул. Огинского, 11. Уютный двор, аккуратный, чистый подъезд с домофоном и видеонаблюдением. Квартира без отделки. Полы, стены, потолки ровные, электрика разведена.

Развитая инфраструктура дома (магазины, ТЦ « Парус», школа, бассейн, детский сад, амбулатория ), хорошая транспортная развязка, рядом лес, велодорожки, большая парковка, детская площадка, красивый вид из окна.

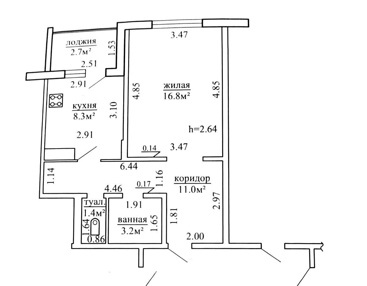
8 этаж 9-ти этажного панельного дома 2016 года постройки. Общая площадь 43.4 кв.м., жилая – 16.8 кв.м., кухня 8.3. Окна – ПВХ. Сан. узел раздельный. Лоджия на кухне, застеклена.

За дополнительной информацией просьба обращаться по номеру телефона.

Кроме того, здесь Вы можете организовать собственный бизнес как сдача квартиры в аренду.

Бесплатное сопровождение для покупателя!!! Оперативный показ и юридическое сопровождение сделки гарантируем. Поможем продать вашу недвижимость для покупки этой. Работаем с привлечением кредита, жилищного баланса, семейного капитала.

За подробной информацией просьба обращаться по телефону и пишите Viber, Telegram. Возможен торг.

125 294.40 BYN 42 000.00$ 2 886.96 BYN/м2 967.74$/м2
Предложить свою цену
Заполните телефон!
Введите цену или отметьте галочкой "Консультация по кредиту"
Нажимая "Отправить" я даю согласие на обработку персональных данных
Область
Гродненская область
Район области
Гродненский
Район
Октябрьский
Микрорайон
Южный-3
Кол-во комнат квартиры
1
Кол-во раздельных комнат
1
Площадь(О/Ж/К)
43.40/16.80/8.30
Этаж
8/9
Год постройки
2016
Материалы дома
Панель
Балконы
Лоджия: 1
Сан. узел (кол-во)
Раздельный: 1
Номер и дата договора
512/17 от 13-10-2025
Посмотреть на карте