place
Наши филиалы: Лида

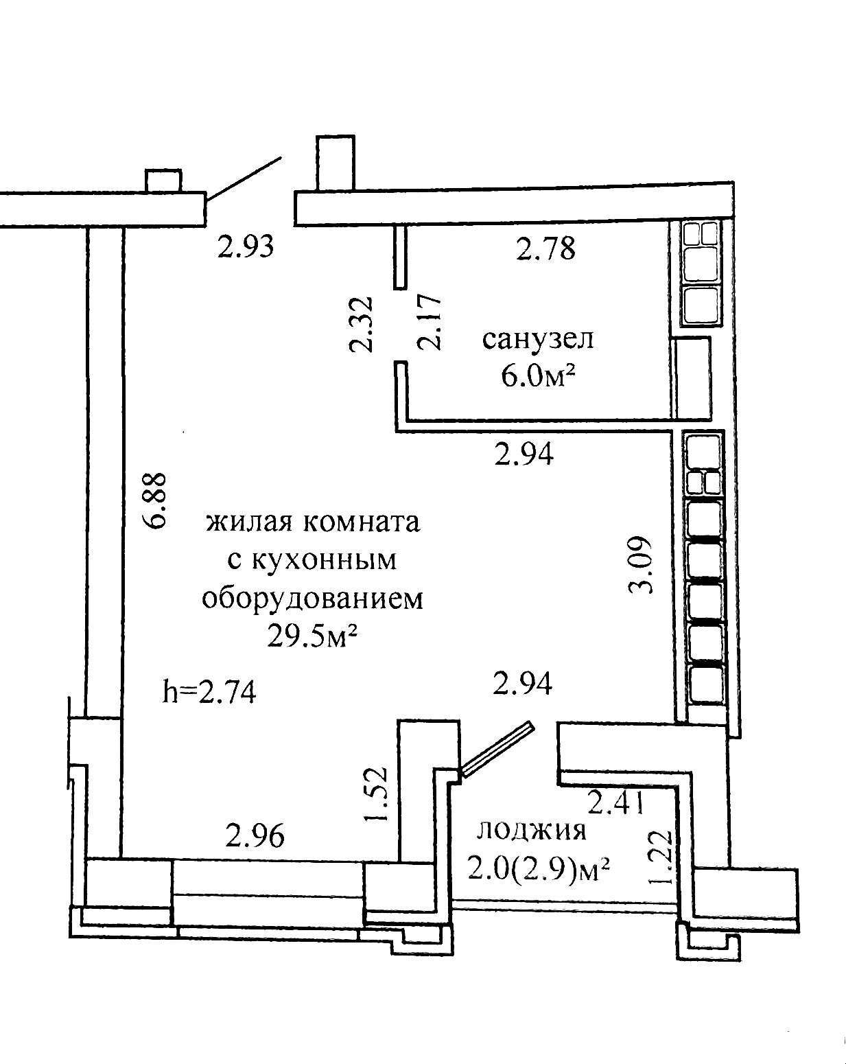
1 комнатная квартира

Продажа Гродно, Магистральная, 10

В ЖК "Мир" продается просторная 1-комнатная квартира-студия с красивым видом на главную улицу. Квартира расположена на 2 этаже 10-этажного монолитного дома премиум класса 2025 года постройки по адресу: ул. Магистральная, д.10.

Общая площадь по СНБ - 37,5 м²

Общая площадь - 35,5 м²

Жилая - 29,5 м²

Высота потолков -2,74 м.

С/у - совмещенный.

Лоджия застеклена в пол.

В квартире разведена электрика. Выполнена свободная планировка с выделением функциональных зон. Удобная планировка квартиры позволяет сделать евро-двушку.

В зоне кухонного оборудования выход под электро-плиту.

Закрытая облагороженная территория, уютный двор, есть детская и спортивная площадка, крытый велобокс для хранения велосипедов. Дружелюбная атмосфера. Есть парковка для автомобилей. Количество парковочных мест соответствует количеству квартир в комплексе.

На первом этаже оборудованы специальные помещения — колясочные. В подъездах установлены системы с выходом под видеозвонок. Также в зонах общего пользования и при входах в здание установлена система видеонаблюдения.

На территории установлены модули доступа, которые позволяют регулировать проход жильцов и гостей.

На первом этаже расположатся помещения коммерческого назначения: кафе, магазины.

Стильная архитектура здания, качественные материалы отделки.

Рядом вся развитая инфраструктура города. Близко центр города. Рядом магазины, поликлиника N5, банки, аптеки, кафе, рестораны, белпочта, гимназия N7, школа, детский сад.

Хорошая транспортная развязка. Близко автовокзал, ж/д вокзал, зоопарк, кинотеатр.

Квартира -отличный вариант для комфортного проживания, а также выгодная инвестиция для сдачи в аренду.

149 495.41 BYN 49 900.00$ 4 211.13 BYN/м2 1 405.63$/м2
Предложить свою цену
Заполните телефон!
Введите цену или отметьте галочкой "Консультация по кредиту"
Нажимая "Отправить" я даю согласие на обработку персональных данных
Область
Гродненская область
Район области
Гродненский
Район
Октябрьский
Кол-во комнат квартиры
1
Кол-во раздельных комнат
1
Площадь(О/Ж/К)
35.50/29.50/-
Этаж
2/10
Год постройки
2025
Материалы дома
Монолит
Балконы
Лоджия: 1
Сан. узел (кол-во)
Совмещенный: 1
Номер и дата договора
430/17 от 09-09-2025
Посмотреть на карте