place
Наши филиалы: Лида

1 комнатная квартира

Продажа Гродно, Лидская, 5

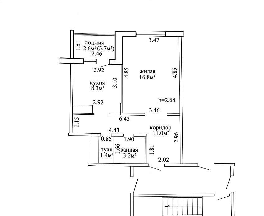
Продается просторная 1-х комнатная квартира с ремонтом улица Лидская дом 5 3 этаж/9 этажного панельного жилого дома. Год постройки 2016. Площадь общая 43.3/ жилая 16.8 просторная кухня 8.3 м2.Выполнен современный ремонт, натяжные потолки, на стенах обои, на полу ламинат, металлическая входная дверь. Лоджия застеклена,утеплена. Есть подвал со своей ячейкой. Остается кухня, с техникой и всей мебелью! Рядом развитая инфраструктура: остановки общественного транспорта, школа №11, школа № 13 ,ясли-сад №63, магазины, Центральный рынок. Шикарное место для проживания в шаговой доступности вся инфраструктура, автовокзал, ж.д вокзал.

Поможем продать вашу недвижимость для покупки этой!

За подробной информацией просьба обращаться по телефону и пишите Viber, Telegram. Возможен торг!

 

 

175 710.48 BYN 58 900.00$ 4 057.99 BYN/м2 1 360.28$/м2
Предложить свою цену
Заполните телефон!
Введите цену или отметьте галочкой "Консультация по кредиту"
Нажимая "Отправить" я даю согласие на обработку персональных данных
Область
Гродненская область
Район области
Гродненский
Район
Октябрьский
Кол-во комнат квартиры
1
Кол-во раздельных комнат
1
Площадь(О/Ж/К)
43.30/16.80/8.30
Этаж
3/9
Год постройки
2016
Материалы дома
Панель
Балконы
Лоджия: 1
Номер и дата договора
443/17 от 12-09-2025
Посмотреть на карте