place
Наши филиалы: Лида

1 комнатная квартира

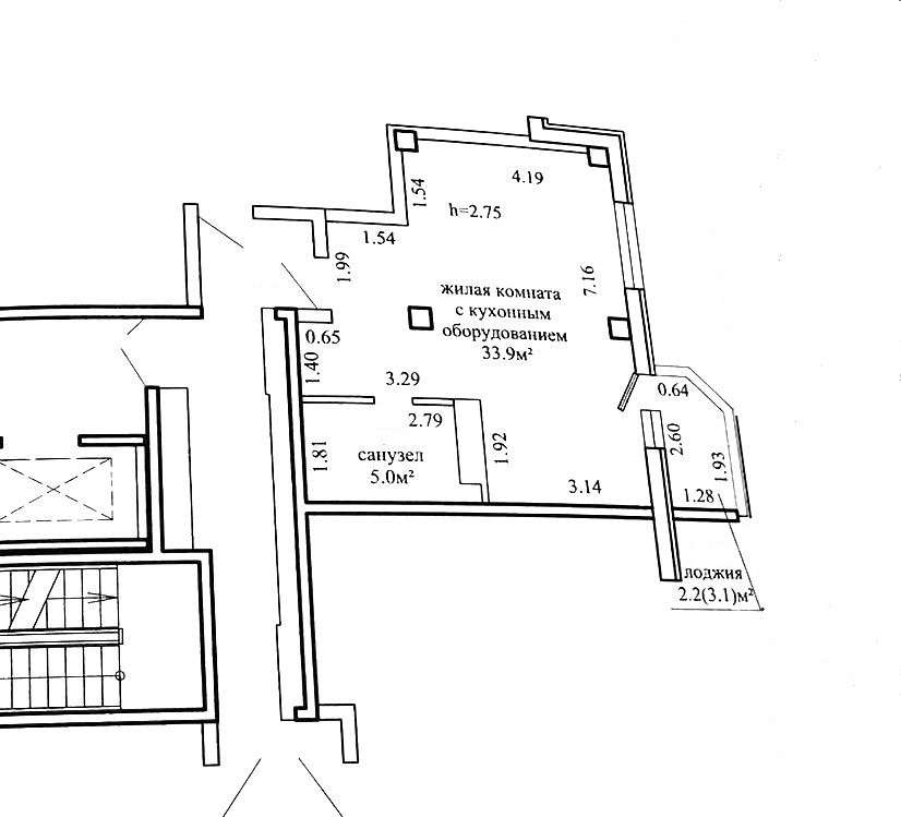
Продажа Гродно, Ивана Якубовского, 9А

Продается просторная 1-комнатная квартира в новостройке по адресу: г. Гродно, ул. Якубовского, 9А, (м-н Фолюш) на 5 этаже/16ти этажного монолитного дома. Год постройки 2025 г.п. Площадь общая 41.1 кв. м., жилая 33.9кв.м. Лоджия застеклена. Окна ПВХ. Полы- стяжка. В шаговой доступности минирынок, продовольственные магазины, супермаркет, школа, детский сад, поликлиника, лесопарк и остановки общественного транспорта. Интернет – оптоволокно.

Кроме того, здесь Вы можете организовать собственный бизнес как сдача квартиры в аренду. Бесплатные консультации! Работаем с привлечением кредита, семейного капитала, жилищного баланса. Оперативный показ.

Поможем продать вашу недвижимость для покупки этой.

За подробной информацией просьба обращаться по телефону и пишите Viber, Telegram.

163 256.80 BYN 56 000.00$ 3 972.18 BYN/м2 1 362.53$/м2
Предложить свою цену
Заполните телефон!
Введите цену или отметьте галочкой "Консультация по кредиту"
Нажимая "Отправить" я даю согласие на обработку персональных данных
Область
Гродненская область
Район области
Гродненский
Район
Октябрьский
Микрорайон
Фолюш
Кол-во комнат квартиры
1
Кол-во раздельных комнат
1
Площадь(О/Ж/К)
41.10/33.90/-
Этаж
5/16
Год постройки
2025
Материалы дома
Монолит
Балконы
Лоджия: 1
Сан. узел (кол-во)
Совмещенный: 1
Номер и дата договора
299/17 от 29-07-2025
Посмотреть на карте