place
Наши филиалы: Лида

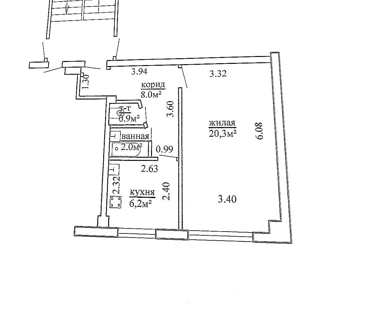
1 комнатная квартира

Продажа Гродно, Фолюш, 15 к.199

Продается однокомнатная квартира в г. Гродно, ул. Фолюш, 15/199. Развитая инфраструктура (магазины, школа, детский сад, минирынок, поликлинника, река Лососянка) . Рядом с домом парковка, детская площадка.

4 этаж 4-хэтажного дома 1980 года постройки, материал стен – панель. Общая площадь 37.1 кв.м., жилая 20.3 кв.м., кухня 6.2 кв.м. Окна – ПВХ. Сан. узел совмещенный, облицован плиткой. Материал полов – ламинат, плитка.

За дополнительной информацией просьба обращаться по номеру телефона.

Кроме того, здесь Вы можете организовать собственный бизнес как сдача квартиры в аренду.

Бесплатное сопровождение для покупателя!!! Работаем с кредитом, жилищным балансом. Оперативный показ и юридическое сопровождение сделки гарантируем. Поможем продать вашу недвижимость для покупки этой.

За подробной информацией просьба обращаться по телефону и пишите Viber, Telegram. Возможен торг.

121 810.40 BYN 43 000.00$ 3 283.30 BYN/м2 1 159.03$/м2
Предложить свою цену
Заполните телефон!
Введите цену или отметьте галочкой "Консультация по кредиту"
Нажимая "Отправить" я даю согласие на обработку персональных данных
Область
Гродненская область
Район области
Гродненский
Район
Октябрьский
Микрорайон
Фолюш
Кол-во комнат квартиры
1
Кол-во раздельных комнат
1
Площадь(О/Ж/К)
37.10/20.30/-
Этаж
4/4
Год постройки
1980
Материалы дома
Панель
Балконы
Нет
Сан. узел (кол-во)
Совмещенный: 1
Номер и дата договора
23/17 от 12-01-2026
Посмотреть на карте